Overview
- Updated On:
- Februar 10, 2026
Beschreibung
Im Kundenauftrag verkaufen wir eine Konzeption für Wohnungen, welche vielfältige Ansprüche an Wohnfläche und Zuschnitt erfüllt.
Das Projekt umfasst 7 moderne und lichtdurchflutete Einheiten teilweise mit Terrasse bzw. Balkon.
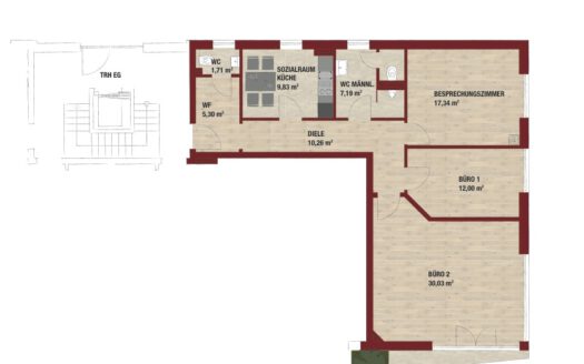
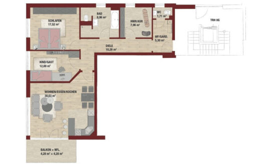
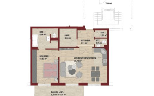
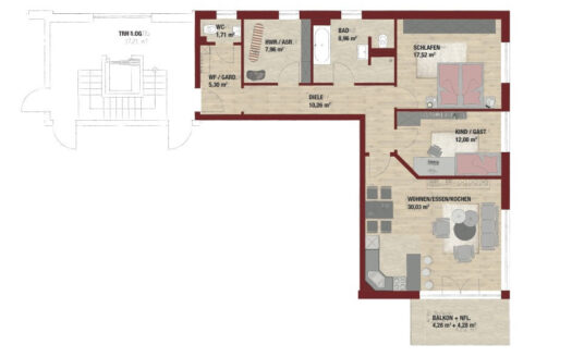
Wir bieten kompakte 2- bis 4-Zimmer-Wohnungen von ca. 48 m² bis zur großzügigen Wohnung mit etwa 111 m² an. Die Gesamtwohnfläche beträgt ca. 614 m²; die Grundstücksfläche ungefähr 500 m².
Die Wohneinheiten verfügen über durchdachte Grundrisse um gehobenen Ansprüchen an individuellem Wohnkomfort gerecht zu werden.
Der Zugang zu allen Wohnungen erfolgt über das gemeinschaftliche Treppenhaus.
Das Mehrfamilienwohnhaus ist gemäß den Anforderungen an die Wärmeschutzverordnung konzipiert.
Im Untergeschoss ist jeder Wohneinheit ein Abstellraum zugeteilt. Zudem befinden sich im UG zwei Garagen sowie weitere 8 Außenstellplätze auf dem Grundstück.
Ein Fahrradraum sowie eine Waschküche stehen den Bewohnern gemeinschaftlich zur Verfügung.
Eine Baugenehmigung und Abgeschlossenheitsbescheinigung sind vorhanden.
Dieses Projekt befindet sich inmitten von Dainbach, einem Stadtteil von Bad Mergentheim.
In der ca. 8 km entfernten Kernstadt Bad Mergentheim gibt es Kindergärten, Grundschulen sowie weiterführende Schulen. Die medizinische Versorgung ist durch Allgemeinärzte, Fachärzte, Apotheken und einem Krankenhaus ebenfalls gewährleistet.
Bad Mergentheim ist eine Stadt an der Tauber im fränkischen Nordosten Baden-Württembergs, etwa 35 km südwestlich von Würzburg bzw. 56 km nordöstlich von Heilbronn. Die Stadt Bad Mergentheim ist die größte des Main-Tauber-Kreises. Bekannt für Industrie, Bildung und Medizin.
Die Autobahnen A 3 und A 81 sind innerhalb weniger Minuten erreichbar. Somit sind die Großstädte mit Ihren Flughäfen wie Frankfurt, Stuttgart und Nürnberg nur ca. 1,5 Stunden entfernt. Es besteht von Bad Mergentheim eine direkte Zuganbindung nach Würzburg. Auch an mehrere überörtliche Radwanderwege ist Bad Mergentheim angebunden: Der Taubertalradweg, der Panoramaweg Taubertal und der 180 km lange Jakobsweg Main-Taubertal führen durch Bad Mergentheim.
Ein Energieausweis liegt z. Z. noch nicht vor, ist jedoch angefordert.
Weitere Informationen werden auf Anfrage gerne zugesandt.
Bitte haben Sie Verständnis, dass Ihre Anfrage nur bei Angabe Ihrer vollständigen Kontaktdaten (Name, Anschrift, Telefonnummer, E-Mail) bearbeitet wird.
Für Besichtigungen stehen wir nach telefonischer oder schriftlicher Rückfrage zur Verfügung.
Alle Angaben und Daten zum Objekt beruhen auf Auskünften des Verkäufers. Hierfür übernehmen wir keine Haftung.
Bei notariellem Vertragsabschluss wird eine Vermittlungs- bzw. Nachweisgebühr in Höhe von 3,57 % inkl. gesetzl. Mehrwertsteuer vom verbrieften Kaufpreis zur sofortigen Zahlung an uns fällig, die vom Käufer zu tragen ist.
Sie haben noch keine Finanzierung? Gerne sind wir Ihnen dabei behilflich. Unser Finanzierungspartner erstellt Ihnen sehr gerne ein unverbindliches, kostenfreies Finanzierungsangebot!





































