Overview
- Updated On:
- Februar 10, 2026
Beschreibung
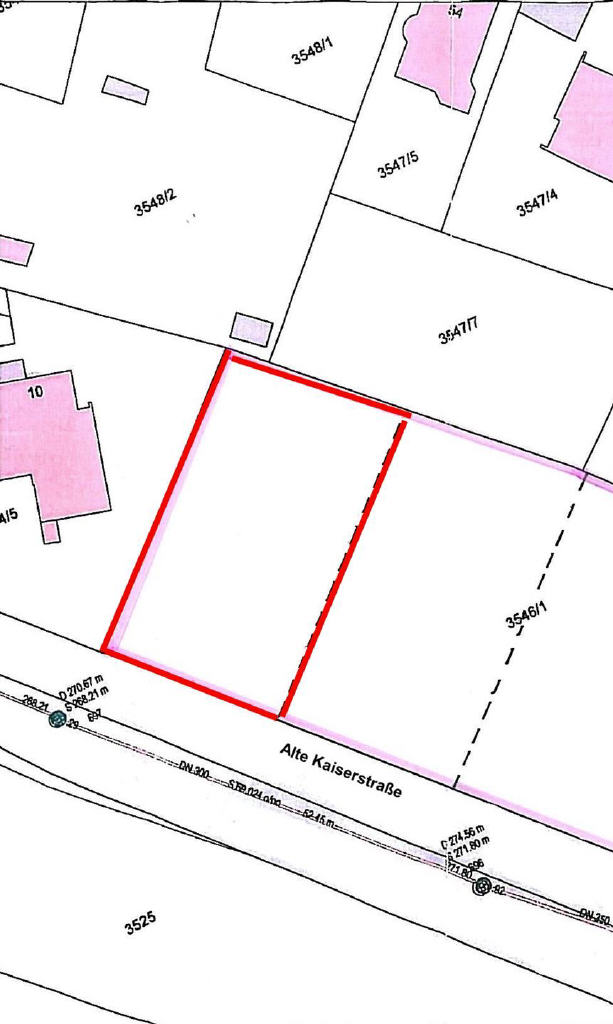
Dieses voll erschlossene Baugrundstück am Stadtrand von Bad Mergentheim begeistert durch die herrliche Aussicht über Bad Mergentheim und das Taubertal.
Da wo andere Urlaub machen, haben Sie die Gelegenheit Ihren Traum vom eigenen Zuhause zu verwirklichen.
Das großzügige Baugrundstück bietet viel Platz, Ihre eigenen individuellen Wünsche und Vorstellungen zu realisieren.
Das gesamte Grundstück hat eine Fläche von ca. 3.500 m² und ist aufgeteilt in 4 Baugrundstücke mit Flächen zwischen 814 bis 948 m².
Das Grundstück:
– voll erschlossen und sofort bebaubar
– bebaubar nach Bebauungsplan (Einfamilienhaus bzw. Doppelhaus)
– sehr schöne Aussicht
– sonnige Lage
– kein Bauzwang
– gute Infrastruktur
– gepflegtes Wohnumfeld
Sie haben noch keine Finanzierung? Gerne sind wir Ihnen dabei behilflich. Unser Finanzierungspartner erstellt Ihnen sehr gerne ein unverbindliches, kostenfreies Finanzierungsangebot!
Weitere Informationen werden auf Anfrage gerne zugesandt.
Bitte haben Sie Verständnis, dass Ihre Anfrage nur bei Angabe Ihrer vollständigen Kontaktdaten (Name, Anschrift, Telefonnummer, E-Mail) bearbeitet wird.
Für Besichtigungen stehen wir nach telefonischer oder schriftlicher Rückfrage zur Verfügung.
Alle Angaben und Daten zum Objekt beruhen auf Auskünften des Verkäufers. Hierfür übernehmen wir keine Haftung.
Bei notariellem Vertragsabschluss wird eine Vermittlungs- bzw. Nachweisgebühr in Höhe von 3,57 % inkl. gesetzl. Mehrwertsteuer vom verbrieften Kaufpreis zur sofortigen Zahlung an uns fällig, die vom Käufer zu tragen ist.





































