Overview
- Updated On:
- Februar 10, 2026
Beschreibung
Unser Angebot erfüllt die vielfältigsten Ansprüche an Wohnfläche und Zuschnitt.
Baugenehmigung und Teilungserklärung sind vorhanden.
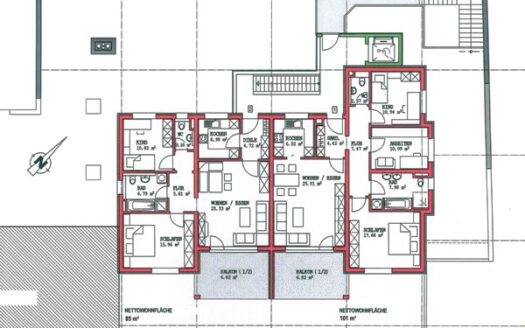
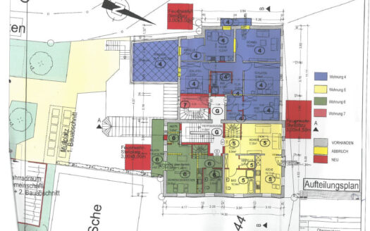
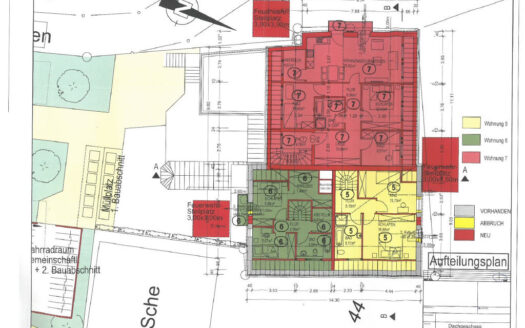
Zum Angebot stehen 12 moderne, lichtdurchflutete Einheiten mit großzügigen Terrassen bzw. Balkonen.
Geplant sind kompakte 2-Zimmer-Wohnungen von 70 m² bis zu weiträumigen Penthouse-Wohnungen mit 214 m² an. Die Gesamtwohnfläche beträgt 1.150 m², Grundstücksfläche ca. 735 m².
Alle Wohneinheiten verfügen über ansprechende Grundrisse um gehobenen Ansprüchen an individuellem Wohnraum gerecht zu werden.
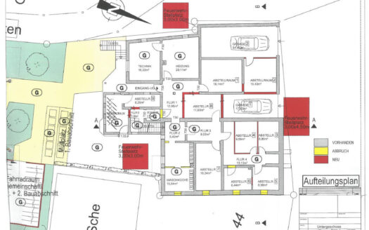
In der Tiefgarage befinden sich 12 Kfz-Stellplätze sowie 2 Außenstellplätze.
Ein Aufzug ist über alle Geschosse vorhanden, schwellenfreie, rollstuhlfreundliche sowie altersgerechte Wohnungen, große Fenster, wohliges Klima durch eine Fußbodenheizung, bester Wärme- und Schallschutz.
Das Mehrfamilienwohnhaus ist gemäß den Anforderungen an die Wärmeschutzverordnung konzipiert und soll mit moderner Fernwärme versorgt werden.
Der Zugang zu allen Wohnungen erfolgt bequem und barrierearm entweder durch den Hauseingang oder alternativ durch die Tiefgarage direkt in den Aufzug.
Bad Mergentheim ist eine Stadt an der Tauber im fränkischen Nordosten Baden-Württembergs, etwa 35 km südwestlich von Würzburg bzw. 56 km nordöstlich von Heilbronn. Die Stadt Bad Mergentheim mit ca. 24.000 Einwohnern und Einwohnerinnen ist die größte des Main-Tauber-Kreises. Bekannt für Industrie, Bildung und Medizin.
Die Autobahnen A 3 und A 81 sind innerhalb weniger Minuten erreichbar. Somit sind die Großstädte mit ihren Flughäfen wie Frankfurt, Stuttgart und Nürnberg nur ca. 1,5 Stunden entfernt. Es besteht eine direkte Zuganbindung nach Würzburg. Auch an mehrere überörtliche Radwanderwege ist Bad Mergentheim angebunden: Der Taubertalradweg, der Panoramaweg Taubertal und der 180 km lange Jakobsweg Main-Taubertal führen durch Bad Mergentheim
Weitere Informationen werden auf Anfrage gerne zugesandt.
Bitte haben Sie Verständnis, dass Ihre Anfrage nur bei Angabe Ihrer vollständigen Kontaktdaten (Name, Anschrift, Telefonnummer, E-Mail) bearbeitet wird.
Sie haben noch keine Finanzierung? Gerne sind wir Ihnen dabei behilflich. Unser Finanzierungspartner erstellt Ihnen sehr gerne ein unverbindliches, kostenfreies Finanzierungsangebot!





































