Overview
- Updated On:
- März 30, 2021
Beschreibung
Im Kundenauftrag vermieten wir freundliche Geschäftsräume in ausgezeichneter Lage in der Innenstadt Bad Mergentheims!
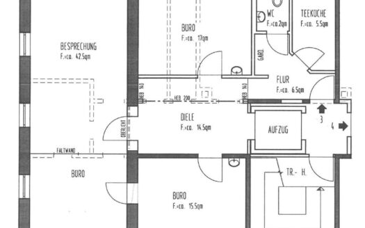
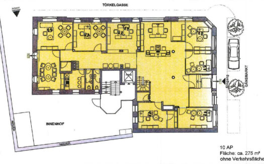
Die Büro-/Praxisflächen befinden sich im 1. OG eines Wohn- und Geschäftshauses und erstrecken sich über eine Fläche von ca. 141 m². Es erwarten Sie fünf Räume, ein separater Abstellraum, ein heller Flur sowie zwei Sanitärräume – eine Toilette mit Dusche und ein gesondertes WC. Außerdem ergibt sich in einem der Räume eine weitere Duschmöglichkeit. Eine kurze Auszeit bietet der zum Hinterhof gerichtete überdachte Balkon.
In die Geschäftsräume gelangen Sie über das gemeinschaftliche Treppenhaus. Zum Innenbereich des Gebäudes zählen eine Zahnarztpraxis sowie eine Wohneinheit.
Bei Bedarf können zwei Stellplätze angemietet werden. Des Weiteren befinden sich in direkter Nähe ein Parkhaus sowie eine Bushaltestelle.
Die Räumlichkeiten sind derzeit renovierungsbedürftig, werden aber vom Vermieter nach den Wünschen des neuen Mieters renoviert.
Das Gebäude befindet sich in unmittelbarer Nähe zum Marktplatz und hebt sich so durch die sehr gute Stadtlage mit viel Kundenverkehr hervor. In wenigen Minuten erreichen Sie den Bahnhof und das Einkaufszentrum Activ-Center. Eine Sparkassen-Filiale liegt nur wenige Häuser weit entfernt. Zudem erreichen Sie viele weitere Geschäfte und Gastronomien bequem zu Fuß.
Bad Mergentheim ist eine Stadt an der Tauber im fränkischen Nordosten Baden-Württembergs, etwa 35 km südwestlich von Würzburg bzw. 56 km nordöstlich von Heilbronn. Die Stadt Bad Mergentheim ist die größte des Main-Tauber-Kreises. Bekannt für Industrie, Bildung und Medizin.
Die Autobahnen A 3 und A 81 sind innerhalb weniger Minuten erreichbar. Somit sind die Großstädte mit Ihren Flughäfen wie Frankfurt, Stuttgart und Nürnberg nur ca. 1,5 Stunden entfernt. Es besteht eine direkte Zuganbindung nach Würzburg. Auch an mehrere überörtliche Radwanderwege ist Bad Mergentheim angebunden: Der Taubertalradweg, der Panoramaweg Taubertal und der 180 km lange Jakobsweg Main-Taubertal führen durch Bad Mergentheim.
Ein Energieausweis liegt z. Z. noch nicht vor, ist jedoch angefordert.
Weitere Informationen werden auf Anfrage gerne zugesandt.
Bitte haben Sie Verständnis, dass Ihre Anfrage nur bei Angabe Ihrer vollständigen Kontaktdaten (Name, Anschrift, Telefonnummer, E-Mail) bearbeitet wird.
Für Besichtigungen stehen wir nach telefonischer oder schriftlicher Rückfrage zur Verfügung.
Alle Angaben und Daten zum Objekt beruhen auf Auskünften des Vermieters. Hierfür übernehmen wir keine Haftung.
Bei Mietvertragsabschluss wird eine Vermittlungs- bzw. Nachweisgebühr in Höhe von 2,38 Nettomieten inkl. gesetzl. Mehrwertsteuer zur sofortigen Zahlung an uns fällig, die vom Mieter zu tragen ist.





































































