Overview
- Updated On:
- März 11, 2026
- 75 m2
- Year Built: 1992
Beschreibung
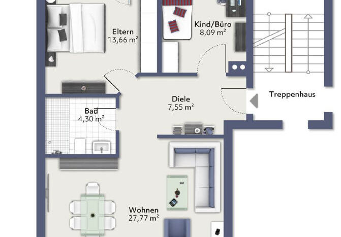
Die gepflegte, neuwertige 3-Zimmer-Wohnung im 1. Obergeschoss eines Wohn- und Geschäftshauses, zentral in der Stadtmitte von Lauda, überzeugt durch eine durchdachte Raumaufteilung, zwei Balkone und moderne Ausstattung. Ideal für Singles, Paare, kleine Familien oder Senioren.
RAUMAUFTEILUNG:
– Moderne Küche
(Einbauküche inkl. Siemens-Herd/Backofen, Bosch-Geschirrspüler, Siemens-Kühl/Gefrierkombination)
– Praktische Speisekammer mit montiertem Regalsystem
– Wohn-/Esszimmer mit Zugang zum sonnigen Balkon
– Schlafzimmer mit eigenem Balkonzugang
– Büro-/Gästezimmer
– Modernisiertes Badezimmer
– Kleine, funktionale Diele
ZUSÄTZLICHE FLÄCHEN:
– Eigenes Kellerabteil
– Wasch- und Trockenraum zur gemeinschaftlichen Nutzung
– Tiefgaragenstellplatz
BESONDERHEITEN:
– Nur von der Eigentümerin bewohnt (Nichtraucherin, keine Haustiere)
– Hochwertige Einbauküche (neu 2022)
– Fest montierte Fliegengitter mit herausnehmbaren Alurahmen (neu 2022)
– Renoviertes Badezimmer, Bodenbeläge, Türen (2021)
– Keller renoviert, verputzte Wände, neuer Boden, gestrichen (2022)
– Neue Heizungsanlage für das gesamte Objekt (2022)
– Übergabe inkl. Lampen, Vorhangstangen, Regalsystem und Küche
Die Weinstadt Lauda-Königshofen liegt im Main-Tauber-Kreis, dem nördlichsten Landkreis Baden-Württembergs zwischen der Kreisstadt Tauberbischofsheim und der Großen Kreisstadt Bad Mergentheim in der heute als Tauberfranken bekannten Region.
Lauda-Königshofen selbst überzeugt durch seine perfekte Infrastruktur mit allen Einrichtungen des täglichen Bedarfs sowie Schulen und Kindergärten vor Ort.
Durch die nahe Bundesstraße 290 und die Autobahn 81 ist eine gute Verkehrsanbindung an das überregionale Verkehrswegenetz gewährleistet, außerdem ist Lauda an die Taubertalbahn und somit an das überregionale Schienennetz angebunden und gehört zudem zur VerkehrsGesellschaft Main-Tauber mbH und damit zum Verkehrsverbund Rhein-Neckar.
Weitere Informationen werden auf Anfrage gerne zugesandt.
Bitte haben Sie Verständnis, dass Ihre Anfrage nur bei Angabe Ihrer vollständigen Kontaktdaten (Name, Anschrift, Telefonnummer, E-Mail) bearbeitet wird.
Für Besichtigungen stehen wir nach telefonischer oder schriftlicher Rückfrage zur Verfügung.
Alle Angaben und Daten zum Objekt beruhen auf Auskünften des Verkäufers. Hierfür übernehmen wir keine Haftung.
Bei notariellem Vertragsabschluss wird eine Vermittlungs- bzw. Nachweisgebühr in Höhe von 3,57 % inkl. gesetzl. Mehrwertsteuer vom verbrieften Kaufpreis zur sofortigen Zahlung an uns fällig, die vom Käufer zu tragen ist. Der Immobilienmakler hat einen provisionspflichtigen Maklervertrag mit dem Verkäufer in gleicher Höhe abgeschlossen.
A+
A
B
C
D
E
F
G
H
































