Overview
- Updated On:
- Oktober 29, 2025
- 108 m2
- Year Built: 2018
Beschreibung
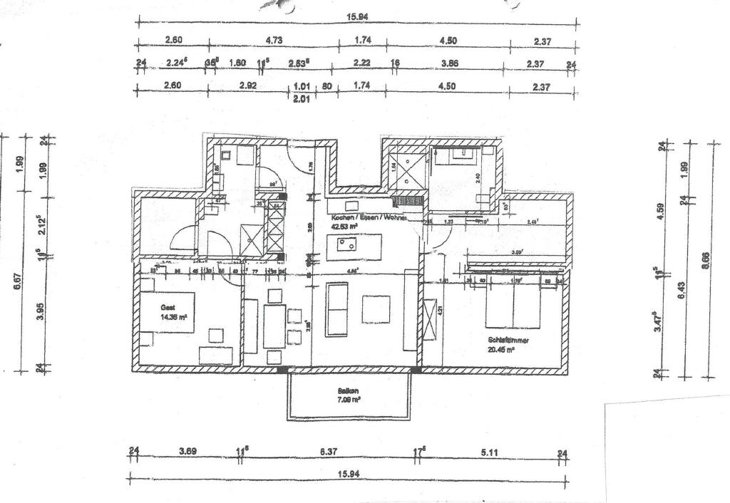
Die rollstuhlgerechte Wohnung besticht durch ihre moderne Aufteilung. Im Herzen der Wohnung sorgt die zum Wohn-/Esszimmer offene Küche mit Kochinsel für ein einzigartiges Kocherlebnis. Die hochwertige Einbauküche mit Markengeräten ist im Mietpreis bereits enthalten.
Linkerhand befindet sich das Schlafzimmer mit Ankleidebereich und eigenem Badezimmer mit WC. Für Wohlfühlatmosphäre sorgt hier die große Dusche mit Sitzgelegenheit und der Handtuchheizkörper sowie die moderne Badmöblierung.
Im rechten Teil der Wohnung befinden sich das Kinder- bzw. Arbeitszimmer und das Gäste-Bad, ebenfalls mit Dusche und WC, sowie ein Abstellraum.
Der vom Wohn-Esszimmer aus begehbare Balkon ist zum Schutz einer intensiven Sonnenbestrahlung mit einer Markise versehen.
Zur Wohnung gehört ein Kellerabteil im Untergeschoß sowie ein extra breiter Tiefgaragenstellplatz, der für 60,– EUR im Monat angemietet werden kann.
Die Wohnanlage verfügt über einen gemeinsamen Waschmaschinenraum mit Trockenraum. Die Waschmaschine sowie auch der Wäschetrockner können aber auch in der Wohnung aufgestellt werden, die Anschlüsse hierfür befinden sich im Gäste-Bad.
Diese exklusive Wohnung befindet sich in der 2. Etage einer Wohnanlage, die im Frühjahr 2019 fertig gestellt wurde.
In den nahe gelegenen Kurpark, zur Fußgängerzone sowie zu den Geschäften des täglichen Bedarfs sind es nur wenige Gehminuten.
Für Besichtigungen stehen wir jederzeit und unverbindlich nach telefonischer oder schriftlicher Rückfrage zur Verfügung.
Alle Angaben und Daten zum Objekt beruhen auf Auskünften des Vermieters. Hierfür übernehmen wir keine Haftung.
Ein Energieausweis liegt z. Z. noch nicht vor, ist jedoch angefordert.
A+
A
B
C
D
E
F
G
H
































