Overview
- Updated On:
- November 3, 2025
- 143 m2
- Year Built: 2012
Beschreibung
DETAILS ZUR WOHNUNG
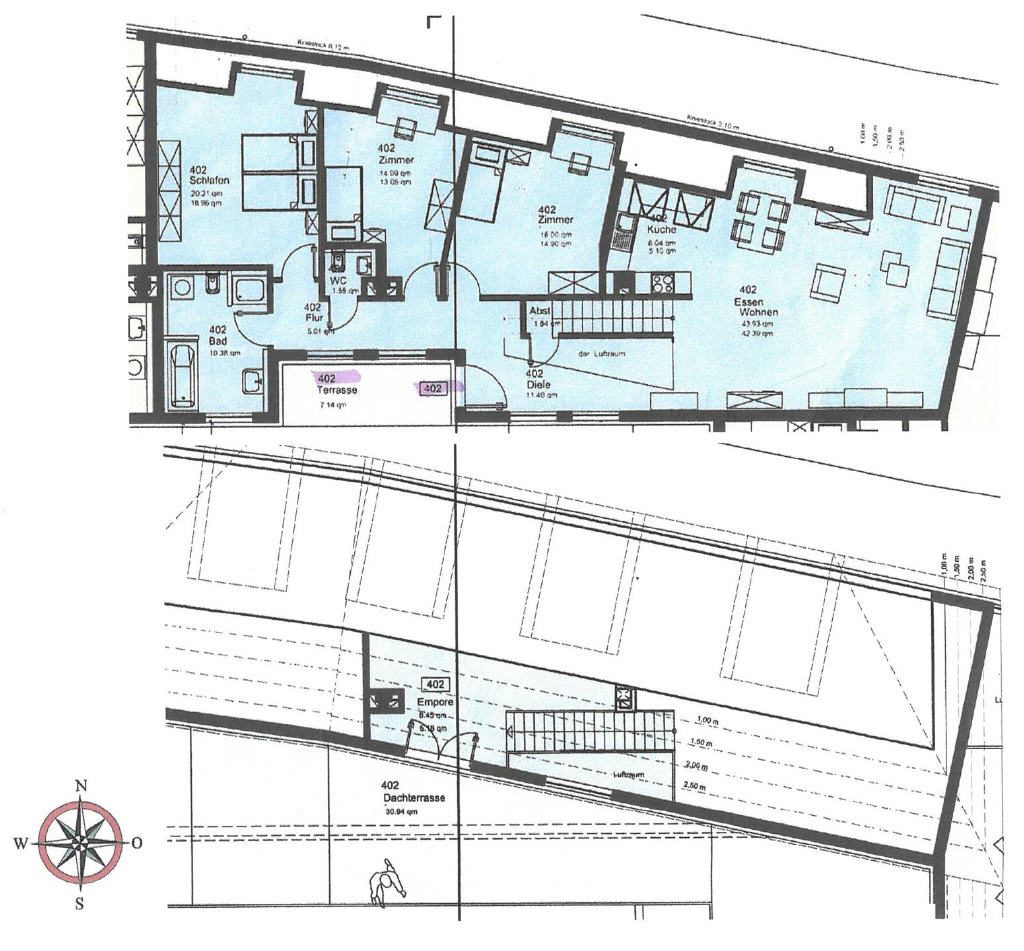
Die Maisonettewohnung befindet sich in zentraler Innenstadtlage direkt am neu erstellten Gänsmarkt in Bad Mergentheim. Sie liegt im 3. Obergeschoss und ist bequem über einen Aufzug erreichbar. Der Zugang zur Wohnung erfolgt über den Außenbereich, der einen Blick auf den Innenhof bietet.
Vor der Wohnungseingangstür befindet sich eine kleine Terrasse. Beim Betreten der Wohnung gelangt man in eine Diele, die mit pflegeleichten grauen Fliesen verlegt ist. Das große Wohn- und Esszimmer sowie das Schlafzimmer und zwei weitere Zimmer sind jeweils mit Parkettfußboden ausgestattet. Das deckenhoch geflieste Badezimmer ist mit einer Badewanne, einer behindertengerechten Dusche und einer Toilette versehen. Zusätzlich gibt es ein Gäste-WC.
Eine Holztreppe führt auf eine Empore im 2. Dachgeschoss und eignet sich ideal als Arbeits- oder Hobbybereich. Von hier hat man Zugang zur großen Dachterrasse, die einen herrlichen Ausblick auf die Dächer von Bad Mergentheim bietet. Der Bereich unter der Treppe wurde zum Abstellraum ausgebaut.
Zur Wohnung gehört ein Kelleranteil im Erdgeschoss.
Die Wohnung ist ausschließlich für Kapitalanleger gedacht, da die derzeitige Mieterin ein Wohnrecht besitzt. Die Kaltmiete wird Ihnen auf Anfrage gerne mitgeteilt.
ZUSAMMENFASSUNG
Innenstadtlage von Bad Mergentheim am neuen Gänsmarkt
3. Obergeschoss und Dachgeschoss
Erreichbarkeit mit Aufzug
Wohnungszugang: Außenbereich mit Blick zum Innenhof
Kleine Terrasse vor der Wohnungseingangstür sowie Dachterrasse mit herrlichem Ausblick
Diele: Bodenbelag mit pflegeleichten grauen Fliesen
Parkettfußboden in Wohn-/Esszimmer, Schlafzimmer und zwei weiteren Zimmern
Badezimmer mit Badewanne, behindertengerechter Dusche und Toilette, deckenhoch gefliest
Zusätzliches Gäste-WC
Holztreppe führt ins 2. DG (Empore), nutzbar als Arbeits- oder Hobbybereich
Abstellraum: Bereich unter der Treppe ausgebaut
hell und freundlich durch weiße Wände und Decken sowie Türen und Fenster
Besonderheiten: Überwiegender Teil der Wohnung mit Dachgauben und Dachschrägen
Kelleranteil im EG
Wohnung nur für Kapitalanleger, Mieterin hat Wohnrecht
Kaltmiete: auf Anfrage
Bad Mergentheim ist eine Stadt an der Tauber im fränkischen Nordosten Baden-Württembergs, etwa 35 km südwestlich von Würzburg bzw. 56 km nordöstlich von Heilbronn. Die Stadt Bad Mergentheim mit ca. 24.000 Einwohnern und Einwohnerinnen ist die größte des Main-Tauber-Kreises. Bekannt für Industrie, Bildung und Medizin.
Die Autobahnen A 3 und A 81 sind innerhalb weniger Minuten erreichbar. Somit sind die Großstädte mit ihren Flughäfen wie Frankfurt, Stuttgart und Nürnberg nur ca. 1,5 Stunden entfernt. Es besteht eine direkte Zuganbindung nach Würzburg. Auch an mehrere überörtliche Radwanderwege ist Bad Mergentheim angebunden: Der Taubertalradweg, der Panoramaweg Taubertal und der 180 km lange Jakobsweg Main-Taubertal führen durch Bad Mergentheim.
Ein Energieausweis liegt z. Z. noch nicht vor, ist jedoch angefordert.
Weitere Informationen werden auf Anfrage gerne zugesandt.
Bitte haben Sie Verständnis, dass Ihre Anfrage nur bei Angabe Ihrer vollständigen Kontaktdaten (Name, Anschrift, Telefonnummer, E-Mail) bearbeitet wird.
Für Besichtigungen stehen wir nach telefonischer oder schriftlicher Rückfrage zur Verfügung.
Alle Angaben und Daten zum Objekt beruhen auf Auskünften des Verkäufers. Hierfür übernehmen wir keine Haftung.
Bei notariellem Vertragsabschluss wird eine Vermittlungs- bzw. Nachweisgebühr in Höhe von 3,57 % inkl. gesetzl. Mehrwertsteuer vom verbrieften Kaufpreis zur sofortigen Zahlung an uns fällig, die vom Käufer zu tragen ist.
Sie haben noch keine Finanzierung? Gerne sind wir Ihnen dabei behilflich. Unser Finanzierungspartner erstellt Ihnen sehr gerne ein unverbindliches, kostenfreies Finanzierungsangebot!































































